Full pott for HRTB
HRTB AS gikk av med seieren i arkitektkonkurransen om utformingen av boligområder på Lund og Vold på Hamar/Ringsaker.
Juryen diskuterte frem og tilbake over lengre tid før de endelig kom frem til tilfredsstillende kriterier som favnet visjonen bak byggeprosjektet. Tidligere var Vold og Lund to store gårder. Juryen konkluderte til slutt med at det viktigste var å finne frem til ”et robust og overbevisende hovedgrep som kan utvikles over tid.” I tillegg var ”et attraktivt og variert bomiljø, miljøbevissthet, bruk av tre, universell utforming og lokal håndtering av overvann” avgjørende kriterier. Ingen av forslagene tilfredsstilte juryen fullt ut, men HRTB AS illustrerte likevel med sitt vinnerprosjekt et svært godt utgangspunkt for videre bearbeiding av nye boligområder på Vold og Lund.
Med seg på vinnerlaget, ledet av Ola Mowé, hadde HRTB AS med seg Vilhelm Lauritzen Arkitekter, Landskapsarkitekt Grindaker AS og Rådgiver kulturminner Grete Jarmund (MNAL). Juryleder var NAL-oppnevnte Henriette Salvesen. De øvrige i juryen var Anne Marie Stensmark, Hamar kommune, Eilert Ellefsen, Ringsaker kommune, Michael Klinski, Husbanken og Ellen Husaas (MNAL).
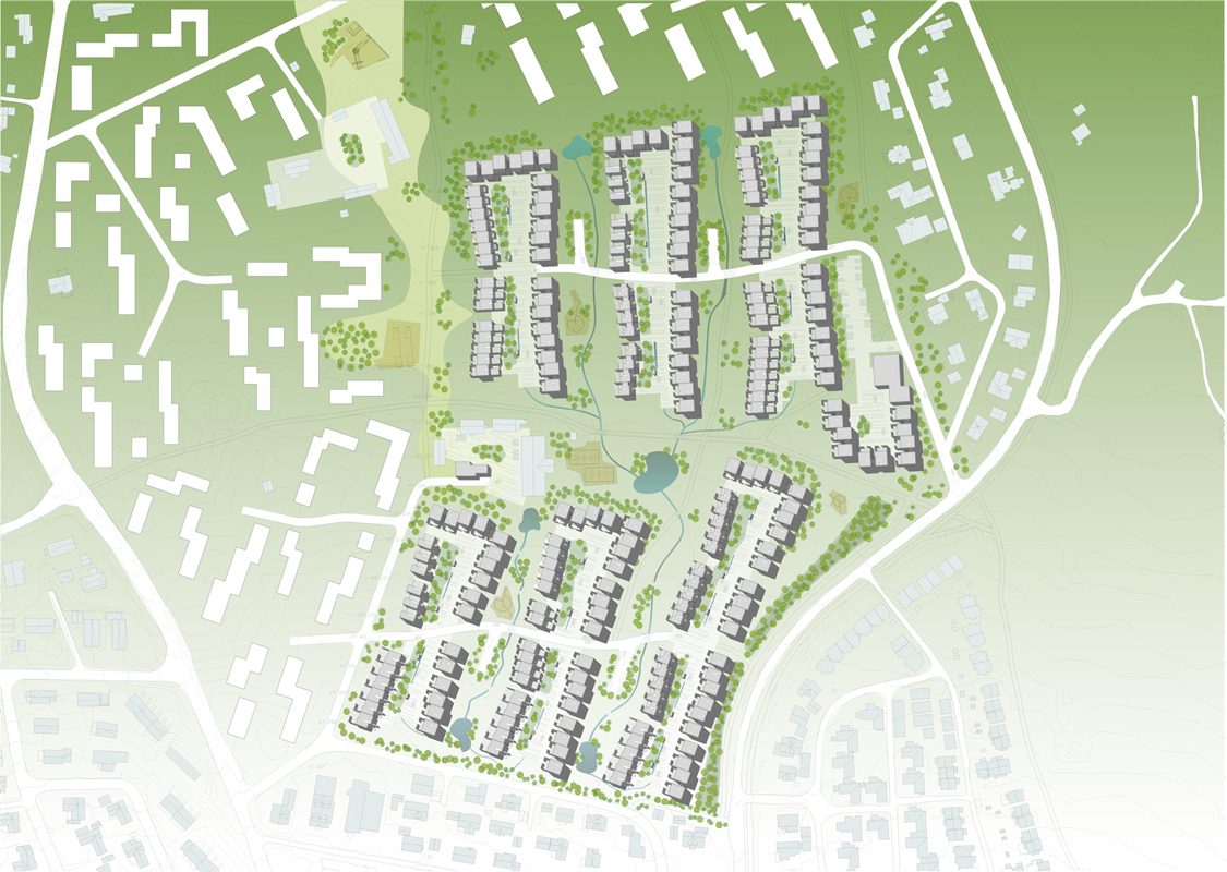
”Stav”
Vinnerprosjektet, under mottoet ”Stav”, blir av juryen beskrevet som ”et tydelig, enkelt og overbevisende plangrep i tråd med konkurransens målsetting”. En annen avgjørende faktor for utvelgelsen var at ”planløsningen vitner om innlevelse og forståelse for det å bo.”
På andreplass finner man prosjektet ”Graset er grønt for æille” forfattet av April Arkitekter ved Kjersti Hembre og Dronninga Landskap AS. Dette prosjektet mestrer i følge juryen ”å skape et tydelig og godt hovedgrep med god balanse mellom åpne grønne arealer og bebyggelse, samtidig som det på en overbevisende måte spiller på områdets eksisterende stedsidentitet.”
Tredjeplassen er tildelt ”Go to gutu” forfattet av arkitektkontoret GASA AS ved Marius Nygaard og IN’ BY AS. Her vektlegger juryen at prosjektet viser ”et arkitektonisk sett interessant spekter av boligtypologier.”
Da gjenstår det bare å se om første byggesten i ”Stav”-prosjektet er lagt i 2010, slik Hamar og Ringsaker kommune ønsker det.
Les mer på Hamar kommune sine hjemmesider

